/
£1,250 per calendar month
Dandelion, Cramlington, Newcastle Upon Tyne, NE23 8GG 3 Bedroom House - Townhouse
Share property:
Overview
ZERO DEPOSIT OPTION AVAILABLE. Jan Forster Estates are delighted to offer this brand new 'Norbury', located in the magnificent new development called West Meadows in Cramlington.
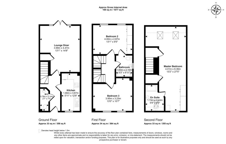
Experience the grandeur of this remarkable three-storey home, featuring generously sized rooms and abundant storage options. The ground floor welcomes you with a delightful lounge/diner located at the rear of the property, where French doors seamlessly link the indoor and outdoor spaces. At the front, a modern kitchen awaits, accompanied by a separate WC and a convenient storage cupboard.
The first floor accommodates 2 spacious double bedrooms situated at the front and rear of the property, providing generous storage and floor area. A family bathroom serves as a dividing space between these two bedrooms.
The second floor provides an expansive main bedroom, which covers the entire floor space and includes a dressing area, en-suite and further storage cupboards!
Living here means you can enjoy country walks at Northumberlandia, just minutes from your doorstep. As well as being a short drive or walk from Manor Walks shopping centre and Cramlington train station. With local amenities, close access to the A19 and A1 and schools rated 'Good' nearby, West Meadows is the perfect place for your family to call home.
*Hyperoptic broadband pre-installed
*Council Tax band TBC*
Lomond on behalf of Lloyds Living, part of Lloyds Banking Group operates a growing portfolio of more than 3,000 professionally managed homes for rent, improving access to good value, quality, sustainable housing across the UK. Lloyds Living helps to support investment into local communities by building and renting homes that people want, in the places they are needed.
*Internal CGIs are indicative and to be used as guidance only*
Experience the grandeur of this remarkable three-storey home, featuring generously sized rooms and abundant storage options. The ground floor welcomes you with a delightful lounge/diner located at the rear of the property, where French doors seamlessly link the indoor and outdoor spaces. At the front, a modern kitchen awaits, accompanied by a separate WC and a convenient storage cupboard.
The first floor accommodates 2 spacious double bedrooms situated at the front and rear of the property, providing generous storage and floor area. A family bathroom serves as a dividing space between these two bedrooms.
The second floor provides an expansive main bedroom, which covers the entire floor space and includes a dressing area, en-suite and further storage cupboards!
Living here means you can enjoy country walks at Northumberlandia, just minutes from your doorstep. As well as being a short drive or walk from Manor Walks shopping centre and Cramlington train station. With local amenities, close access to the A19 and A1 and schools rated 'Good' nearby, West Meadows is the perfect place for your family to call home.
*Hyperoptic broadband pre-installed
*Council Tax band TBC*
Lomond on behalf of Lloyds Living, part of Lloyds Banking Group operates a growing portfolio of more than 3,000 professionally managed homes for rent, improving access to good value, quality, sustainable housing across the UK. Lloyds Living helps to support investment into local communities by building and renting homes that people want, in the places they are needed.
*Internal CGIs are indicative and to be used as guidance only*
- Professional Landlord
- Brand New Property
- White Goods Included
- Off Road Parking
- Pets Considered
- Call For More Information
- Long Term Tenancies Available
- Zero Deposit Option Available
Request a viewing
If you would like to arrange a viewing, please fill in your details and we will contact you as soon as possible.